Regards, ruralités en Nouvelle-Aquitaine

Menu
Retour

AUBISE

Projet construit

Arrivée / Photographe : Nicolas Fontas - Architecte : Emmanuelle Lesgourgues - Nom du projet :Aubise, Borce, 2025

Arrivée Photographe : Nicolas Fontas - Architecte : Emmanuelle Lesgourgues - Nom du projet :Aubise, Borce, 2025

Catégorie(s)

Identité locale - Culture/nature

Ce projet de rénovation complète d'une ancienne grange-étable est un projet dont la mise en œuvre a nécessité une patience et une détermination reposant sur les épaules de ceux qui l'ont construite. Par exemple, l'impossibilité d'amener un véhicule devant le chantier a exigé de penser en amont l’importance de chaque matériau, de chaque outil et de recourir à des techniques qui avaient fait leurs preuves. Le peu de modifications extérieures qui ont été faites sont fidèles à l’esprit de l’existant

État d’avancement

Effectué ou livré

Année de réalisation

2025

Localisation

Lieu-dit Aubise
64490 BORCE 📍

Commanditaire

maître d'ouvrage privé

Descriptif du projet

Longtemps, cette petite grange au bout d’un chemin en vallée d’Aspe, au lieu-dit Aubise abritait des bovins et du foin à l’étage mais depuis la fin des années 70, elle est restée vide avec son sol en terre battue, son filet d’eau qui la traverse et ses râteliers en bois.
La rénovation de cette grange-étable en pierre se voulait simple et minimale, employant le plus possible des matériaux naturels laissés bruts.
L’intérieur est séparé en deux niveaux, la pièce de vie en rez-de-chaussée et un dortoir à l’étage.
Au milieu de la pièce commune trône une table géante de 6m2 pour cuisiner, mais aussi pour manger, pour travailler, pour jouer aux cartes, pour plier les draps ou encore pour bricoler. Dans un coin en face du poêle, une estrade-banquette pour se détendre qui peut se transformer en lit.
Au fond une cloison en panneaux de bouleau isole la salle-de-bains et le cellier.
Les portes en aluminium noir se font face et ouvrent en grand sur la nature. Les meurtrières sont en vitrages fixes pour cadrer sur les montagnes. Le sol est un simple béton brut poncé au disque diamant puis vitrifié.
Le dortoir de l’étage laisse apparaître la charpente originelle, seule la ferme centrale a été modifiée de façon à supprimer l’entrait qui coupait l’espace en deux.
La porte donnant sur l’extérieur est très surélevée par rapport au sol car elle servait à jeter le foin à l’intérieur. Son accès a donné lieu à la réalisation d’un podium, constitué de 3 larges marches sur lesquelles on peut s’asseoir pour admirer les montagnes à travers le triangle vitré qui lui fait face. Ses flancs biseautés ont été décidés sur le chantier pour laisser plus d’espace à l’arrivée de l’escalier, faisant ainsi un clin d’œil à celui de la maison Malaparte. Le triangle vitré sous le faîtage et donnant sur les montagnes existait déjà, ouvert à tous vents pour ventiler l’étage, il laisse aujourd’hui passer le soleil du matin, répercutant dans toute la pièce une multitude de triangles en ombres et reflets.

Porteur du projet

Emmanuelle Lesgourgues ✉️ 📞

Architecte

Emmanuelle Lesgourgues architecte
100 cours Aristide Briand
33000 Bordeaux

Usagers / bénéficiaires / public

Nombre : 4

Privé dans un premier temps, avec pour velléité d'accueillir du public pour des événements culinaires

Budget global du projet

100 000 TTC

Financement

Privé

Arrivée / Photographe : Nicolas Fontas - Architecte : Emmanuelle Lesgourgues - Nom du projet :Aubise, Borce, 2025

Arrivée Photographe : Nicolas Fontas - Architecte : Emmanuelle Lesgourgues - Nom du projet :Aubise, Borce, 2025

Podium / Photographe : Nicolas Fontas - Architecte : Emmanuelle Lesgourgues - Nom du projet :Aubise, Borce, 2025

Podium Photographe : Nicolas Fontas - Architecte : Emmanuelle Lesgourgues - Nom du projet :Aubise, Borce, 2025

Table / Photographe : Nicolas Fontas - Architecte : Emmanuelle Lesgourgues - Nom du projet :Aubise, Borce, 2025

Table Photographe : Nicolas Fontas - Architecte : Emmanuelle Lesgourgues - Nom du projet :Aubise, Borce, 2025

Table 2 / Photographe : Nicolas Fontas - Architecte : Emmanuelle Lesgourgues - Nom du projet :Aubise, Borce, 2025

Table 2 Photographe : Nicolas Fontas - Architecte : Emmanuelle Lesgourgues - Nom du projet :Aubise, Borce, 2025

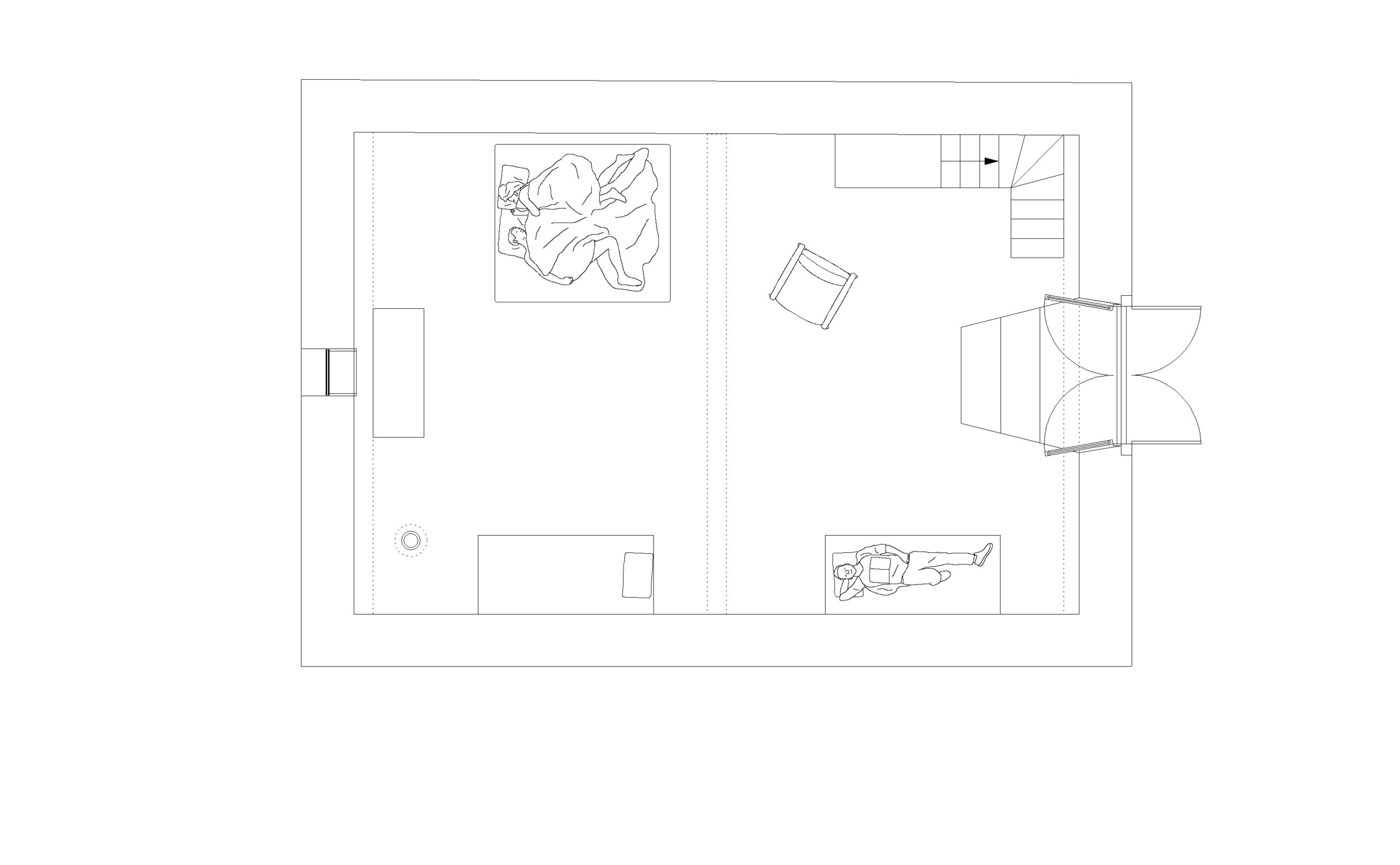
Plan RDC / Photographe : Nicolas Fontas - Architecte : Emmanuelle Lesgourgues - Nom du projet :Aubise, Borce, 2025

Plan RDC Photographe : Nicolas Fontas - Architecte : Emmanuelle Lesgourgues - Nom du projet :Aubise, Borce, 2025

Plan R+1 / Photographe : Nicolas Fontas - Architecte : Emmanuelle Lesgourgues - Nom du projet :Aubise, Borce, 2025

Plan R+1 Photographe : Nicolas Fontas - Architecte : Emmanuelle Lesgourgues - Nom du projet :Aubise, Borce, 2025

Façades et coupe / Photographe : Nicolas Fontas - Architecte : Emmanuelle Lesgourgues - Nom du projet :Aubise, Borce, 2025

Façades et coupe Photographe : Nicolas Fontas - Architecte : Emmanuelle Lesgourgues - Nom du projet :Aubise, Borce, 2025

👀 Visuels 🖊️ Texte
©2025 Regards – Panorama des pratiques et ressources en matière de transformation spatiale. / Design graphique et développement : tabaramounien