Regards, ruralités en Nouvelle-Aquitaine

Menu
Retour

Capberné

Vue générale de la ferme / Luca Escoubet - felaa - Capberné, Retjons, 30 août 2025

Vue générale de la ferme Luca Escoubet - felaa - Capberné, Retjons, 30 août 2025

Catégorie(s)

Identité locale - Culture/nature

La restauration de cet airial s’inscrit dans une démarche de sauvegarde du patrimoine landais. En partenariat avec la Fondation du Patrimoine et des artisans locaux reconnus pour leur savoir-faire, la ferme principale a retrouvé son aspect d’origine, témoignant de l’authenticité et de la richesse des traditions rurales de la région.

Ressources et savoir-faire - Pratiques

La restauration de cet airial met à l’honneur le savoir-faire et les ressources locales. Grâce aux artisans landais — charpentier, maçon — et à l’emploi de matériaux du territoire tels que le bois de récupération, la chaux et le torchis, la ferme principale retrouve son authenticité, reflet d’une tradition bâtie en harmonie avec la nature et le patrimoine landais.

État d’avancement

Effectué ou livré

Année de réalisation

2024

Localisation

Capberné, route de Laprabende
40120 RETJONS 📍

Commanditaire

Airial Capberné

Descriptif du projet

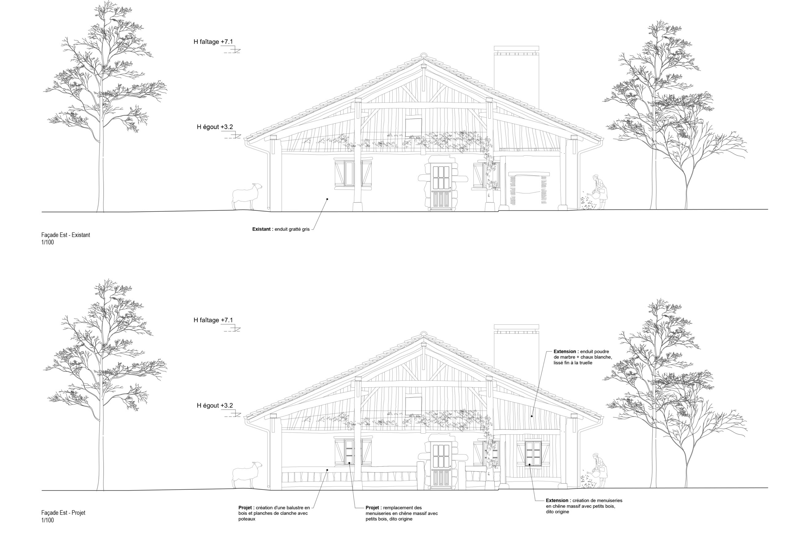
Cette maison familiale, autrefois habitée par les grands-parents du propriétaire actuel, a fait l’objet d’importants travaux de restauration intérieure, complétés par un projet d’extension sur sa façade principale et l’embellissement de l’Airial.
Accompagné par le soutien financier de la Fondation du patrimoine et les conseils de l’architecte des bâtiments de France, le chantier a été mené dans le respect du patrimoine local et des techniques traditionnelles. Les travaux ont combiné une rénovation intérieure soignée, le remplacement des éléments de charpente dégradés et la création d’une extension à pans de bois (colombages) reposant sur des socles en pierre, garnis de moellons et de mortier de chaux, selon les méthodes historiques reprises par les artisans.
Les enduits de façade ont été réalisés à la chaux avec un badigeon blanc, reproduisant fidèlement les procédés traditionnels de la région. Les menuiseries ont été refaites en chêne massif avec des fermetures à batteuse, selon les modèles anciens. La terrasse a été recouverte de carreaux en terre cuite récupérés localement, et une barrière traditionnelle a été reconstituée, illustrant l’attention portée aux détails et à l’authenticité.
Les granges et le four à pain ont bénéficié d’une restauration minutieuse, s’appuyant sur des recherches historiques et l’expertise des artisans locaux. La reconstruction de la bergerie, dont l’empreinte des fondations est encore visible, est en cours et combine archéologie du bâti et savoir-faire artisanal.
Ce projet illustre la richesse du patrimoine rural et la capacité des artisans locaux à faire revivre les techniques anciennes avec respect et authenticité, préservant ainsi la mémoire et l’identité du territoire.

Porteur du projet

Frédéric ESCOUBET ✉️ 📞

Architecte d'intérieur

FELAA
44, rue Chevalier
33000 BORDEAUX

Usagers / bénéficiaires / public

Nombre : 20

Destinée à un usage privé, elle portera aussi un projet d’ouverture en tant que maison d’artistes, dédiée à la création et au partage culturel.

Budget global du projet

180 000 € HT

Financement

Mixte

Partenaires

MRH CHARPENTE

SARL BOUNEOU

Vue générale de la ferme / Luca Escoubet - felaa - Capberné, Retjons, 30 août 2025

Vue générale de la ferme Luca Escoubet - felaa - Capberné, Retjons, 30 août 2025

Montage des murs à colombage / Frédéric Escoubet - felaa - Capberné, Retjons, 8 avril 2022

Montage des murs à colombage Frédéric Escoubet - felaa - Capberné, Retjons, 8 avril 2022

Intérieur / Frédéric Escoubet - felaa - Capberné, Retjons, 31 mars 2023

Intérieur Frédéric Escoubet - felaa - Capberné, Retjons, 31 mars 2023

Vue d'ensemble / Luca Escoubet - felaa - Capberné, Retjons, 30 août 2025

Vue d'ensemble Luca Escoubet - felaa - Capberné, Retjons, 30 août 2025

Façade principale / FELAA - Airial Capberné - Retjons -  29 novembre 2021

Façade principale FELAA - Airial Capberné - Retjons - 29 novembre 2021

Coupe longitudinale / FELAA - Airial Capberné - Retjons -  29 novembre 2021

Coupe longitudinale FELAA - Airial Capberné - Retjons - 29 novembre 2021

👀 Visuels 🖊️ Texte
©2026 Regards – Panorama des pratiques et ressources en matière de transformation spatiale. / Design graphique et développement : tabaramounien