Regards, ruralités en Nouvelle-Aquitaine

Menu
Retour

Château Edmus

Façade principale / Jean-Christophe GARCIA - BRACHARD DE TOURDONNET - Château Edmus, Vignonet - Saint Emilion, 2021

Façade principale Jean-Christophe GARCIA - BRACHARD DE TOURDONNET - Château Edmus, Vignonet - Saint Emilion, 2021

Catégorie(s)

Identité locale - Culture/nature

Il s’agit de créer un chai viticole (cuvier, chai à barriques, stockage) pour abriter la récolte de Château Edmus, un grand cru de Saint Emilion.
Les paysages de vignobles sont constitutifs de l’identité locale de Saint Emilion et nous considérons le chai comme une émergence culturelle de ce territoire.
Dès lors, comment répondre de manière contemporaine à la demande d’une architecture abritant une pratique exigeante, dans un site inscrit au Patrimoine Mondial de l’Humanité.

État d’avancement

Effectué ou livré

Année de réalisation

2021

Localisation

Lieu dit Labrie
33330 Vignonet - Saint Emilion 📍

Commanditaire

Château Edmus

Descriptif du projet

Il s’agit de construire un chai viticole à la place de hangars trop abimés et pollués. Et de réhabiliter une maison vétuste en pierre pour accueillir une salle de dégustation et une chambre d’hôtes.

Afin de créer un dialogue entre un chai neuf, efficace, très technique, au fonctionnement rigoureux et la maison existante en pierre massive, nous décidons d'enrouler le nouveau bâtiment de teinte sombre autour de la maison en pierre blonde.

Pour respecter l'échelle de la maison, et dans un esprit de frugalité, nous décomposons le chai en plusieurs entités fonctionnelles, chacune de la hauteur "juste nécessaire" à son fonctionnement. Puis nous sculptons les volumes obtenus : un retrait vertical marque une rupture avec le volume adjacent. Afin de donner une certaine légèreté à l’ensemble de la composition, certains volumes semblent décollés du sol par un socle en retrait.

Habillé d’un bardage vertical en bois brûlé noir aux reflets chatoyants, le chai contraste fortement de la maison de pierre blonde, qu’il met en valeur tel un écrin.

Porteur du projet

Laurent David ✉️ 📞

Propriétaire vigneron

Château Edmus (SCEA)
6 rue François Bonvin
78100 Saint Germain en Laye

Usagers / bénéficiaires / public

Nombre :

Château Edmus comprend une trentaine de copropriétaires (les wine Angels) selon un financement participatif. Le chai est exploité par les équipes de vignerons tout au long de l'année La chambre d'hôtes accueille régulièrement les Wine Angels

Équipe de conception

ᐅ Pascale de Tourdonnet / BRACHARD DE TOURDONNET : Architecte

ᐅ Philippe Brachard / BRACHARD DE TOURDONNET : Architecte

Budget global du projet

900 000 €ht

Financement

Participatif

Partenaires

BR Construction

Façade principale / Jean-Christophe GARCIA - BRACHARD DE TOURDONNET - Château Edmus, Vignonet - Saint Emilion, 2021

Façade principale Jean-Christophe GARCIA - BRACHARD DE TOURDONNET - Château Edmus, Vignonet - Saint Emilion, 2021

Un édifice au coeur des vignes / Jean-Christophe GARCIA - BRACHARD DE TOURDONNET - Château Edmus, Vignonet - Saint Emilion, 2021

Un édifice au coeur des vignes Jean-Christophe GARCIA - BRACHARD DE TOURDONNET - Château Edmus, Vignonet - Saint Emilion, 2021

Façade latérale / Yoris photographe - BRACHARD DE TOURDONNET - Château Edmus, Vignonet - Saint Emilion, 2021

Façade latérale Yoris photographe - BRACHARD DE TOURDONNET - Château Edmus, Vignonet - Saint Emilion, 2021

Les vendanges / Jean-Christophe GARCIA - BRACHARD DE TOURDONNET - Château Edmus, Vignonet - Saint Emilion, 2021

Les vendanges Jean-Christophe GARCIA - BRACHARD DE TOURDONNET - Château Edmus, Vignonet - Saint Emilion, 2021

PLAN RDC  / BRACHARD DE TOURDONNET -  Château Edmus, Vignonet - Saint Emilion, 2021

PLAN RDC BRACHARD DE TOURDONNET - Château Edmus, Vignonet - Saint Emilion, 2021

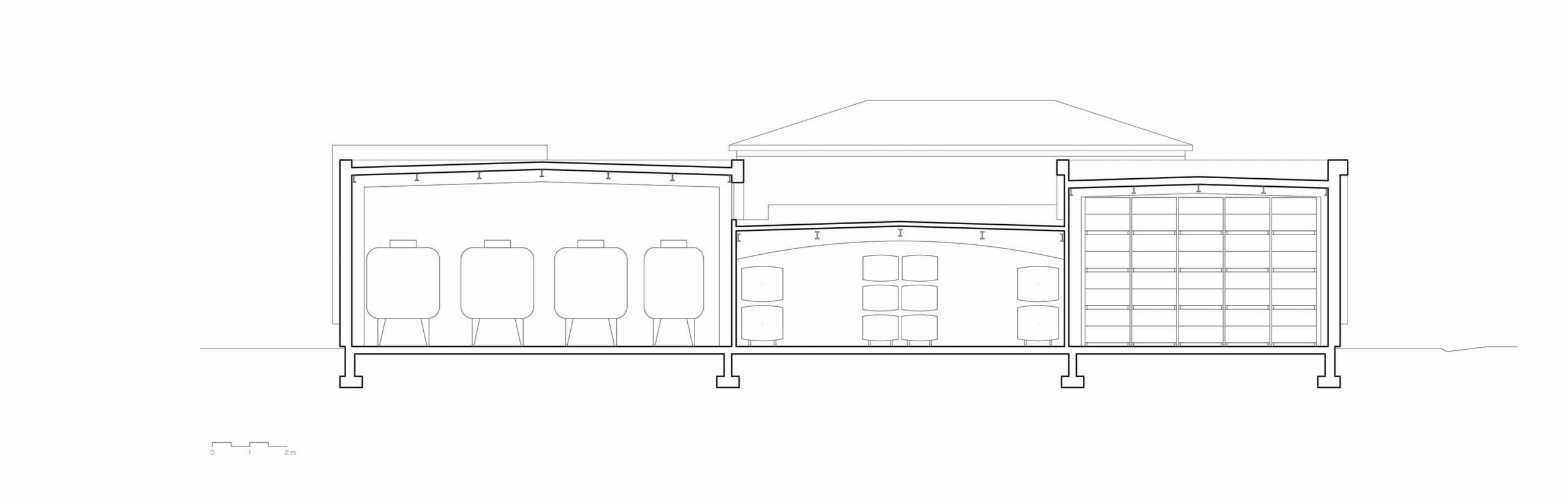
COUPE / BRACHARD DE TOURDONNET -  Château Edmus, Vignonet - Saint Emilion, 2021

COUPE BRACHARD DE TOURDONNET - Château Edmus, Vignonet - Saint Emilion, 2021

👀 Visuels 🖊️ Texte
©2026 Regards – Panorama des pratiques et ressources en matière de transformation spatiale. / Design graphique et développement : tabaramounien