Extension de l’école maternelle d’Arcins
Projet construit
Catégorie(s)
Enjeux de société - Réponse politique
La question de l'accès aux lieux d'éducation et de la qualité des lieux d'éveil pours toutes et tous est une question politique contemporaine. Bien trop souvent, hélas, les espaces pédagogiques situés en ruralité sont vétustes, mal isolés ou sous-dimensionné. Cette situation accentue les inégalités croissantes entre métropole et ruralité. C'est une grande responsabilité de pouvoir aménager en collaboration avec une maitrise d'ouvrage publique, un espace d'éveil décent et adapté aux enfants.
État d’avancement
Effectué ou livré
Année de réalisation
2024
Localisation
4 Rte de Pauillac
33460 Arcins 📍
Commanditaire
Mairie d'Arcins
Descriptif du projet
Contexte /
Arcins est une commune du Médoc (33) située entre les vignes et la berge sauvage de l'estuaire de la Gironde. C'est un village rural de 544 habitants dont la population connait une légère hausse suite à l'augmentation démographique de la métropole bordelaise. En 2022, la mairie souhaite ouvrir une nouvelle classe de grande section et nous sollicite pour penser l'extension de la maternelle existante.
Considérer le Patrimoine Ordinaire /
En face de la mairie, les bâtiments existants de l'école forment un enchainement de trois volumes simples. Ils se caractérisent par une toiture en tuile à deux pans et des murs maçonnés enduits dans des tons beige et ocre. Il nous est tout de suite paru essentiel de s'inscrire dans la continuité discrète de ce patrimoine ordinaire et non dans une logique de rupture. Notre souhait est de travailler l'intégration d'un volume supplémentaire dans la cour de récréation, reprenant des codes de l'école existante dans une variation plus contemporaine. En résumé, il s'agit d'un bâtiment au pignon épuré, coiffé de zinc, d'une façade enduite et tramée, protégée par une casquette métallique et d'une absence de débord de toit grâce aux chéneaux encastrés.
Eveil en milieu rural /
Notre partis pris architectural est d'offrir, derrière l'apparence simple de la façade, un écrin en bois apaisant et chaleureux pour les enfants à l'intérieur du volume. Le choix de l'isolant en sarking nous permet de conserver l'ensemble de la charpente apparente dans le volume de la salle de classe. Toutes les cloisons intérieures sont en ossature bois et finition contreplaqué afin d'accueillir, dans leur épaisseur, un maximum de rangement et de support d'affichage pédagogique. Enfin, pour favoriser l'éveil et l'ensoleillement naturel de la classe une large ouverture est placée à l'ouest, tournée vers les vignes au loin et l'arbre de la cour.
Porteur du projet
Paul Lecomte ✉️ 📞
Architecte associé
Atelier Sur la Piste (SAS)
44 rue André Benac
33190 La Réole
Usagers / bénéficiaires / public
Nombre : 35
Public scolaire : élèves de grande section de maternelle
Équipe de conception
ᐅ Victor Lebrun / Atelier Sur la Piste : Architecte associé
Budget global du projet
285 000 € HT
Financement
Public
Partenaires

Vue depuis la cour de récréation Sandrine Iratçabal - Atelier Sur la Piste - Extension école maternelle, Arcins, 2024

Vue sur couloir accueil et mobilier adapté aux enfants Sandrine Iratçabal - Atelier Sur la Piste - Extension école maternelle, Arcins, 2024

Détail façade principale Sandrine Iratçabal - Atelier Sur la Piste - Extension école maternelle, Arcins, 2024

axonométrie du projet dans son contexte Atelier Sur la Piste - Extension école maternelle, Arcins, 2024

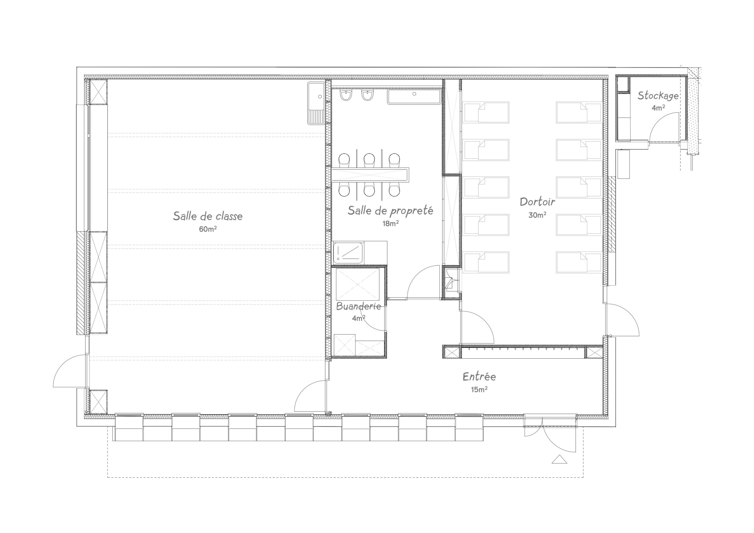
plan projet Atelier Sur la Piste - Extension école maternelle, Arcins, 2024

maquette projet Atelier Sur la Piste - Extension école maternelle, Arcins, 2024