Ferme de Carbouey
Initiative
Catégorie(s)
Économie rurale - Communs
Le projet de Carbouey s’inscrit dans l’économie rurale en soutenant les producteurs et la transition agro-écologique. Il favorise la formation, la recherche et les échanges entre acteurs locaux. En créant un lieu de vie et un atelier de transformation du surplus, il valorise les productions locales et renforce les circuits courts, contribuant ainsi à une économie rurale solidaire et durable.
Enjeux de société - Réponse politique
Le projet de Carbouey répond aux enjeux de société en accompagnant la transition des modes de production. Il s’appuie sur la formation, la recherche environnementale et l’accompagnement des exploitations. La rénovation valorise les savoir-faire et les ressources locales : réparer plutôt que reconstruire. L’installation du laboratoire dans un ancien séchoir illustre cette mutation architecturale et la nécessité d'adapter les outils aux nouveaux usages.
État d’avancement
En cours de réalisation
Année de réalisation
2023
Localisation
Lieu dit de Carbouey
33210 Castillon de Castets 📍
Commanditaire
Association de Carbouey / La Nomali
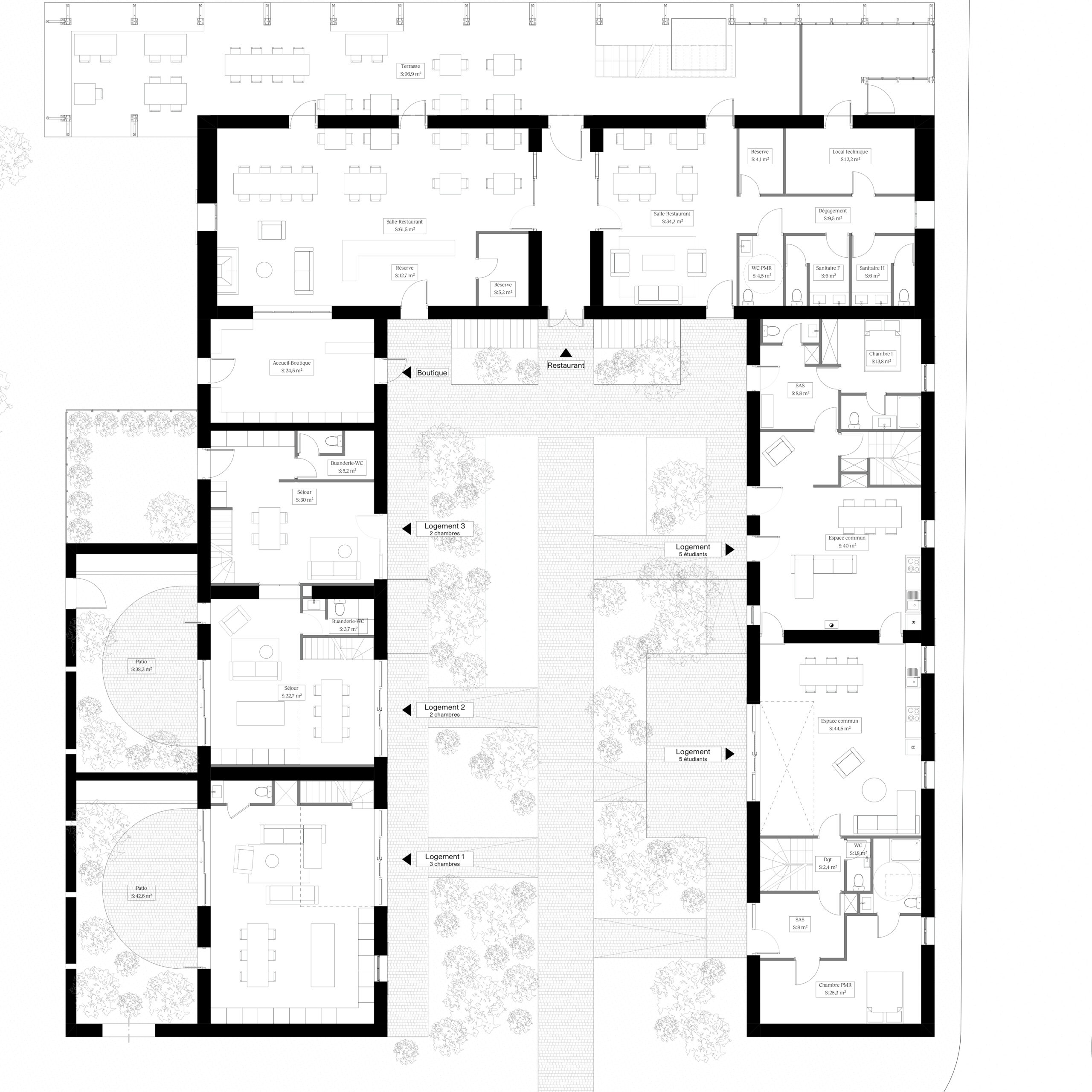
Descriptif du projet
Le site est composé d’un ensemble bâti agricole du XIXème siècle, incluant un ancien corps de ferme, un séchoir à tabac
et s’étend sur 7 hectares de terres agricoles. Le corps de ferme, construit en « U » autour d’une cour centrale,
comprend un silo à grains et un chai à barriques, offrant ainsi plus de 1200 m² de surfaces exploitables. Ces bâtiments
forment des espaces distincts tout en étant interconnectés, favorisant une synergie entre les différentes activités du site.
L’initiative est portée par l’association agroécologique de Carbouey, fondée en 2020 par un groupe de 16 membres aux
profils variés : viticulteurs, maraîchers, paysans boulangers, avocats, architectes, comptables, et journalistes. Leur
objectif commun est de promouvoir et de transmettre les savoirs en agroécologie à un large public, avec un accent
particulier sur l’accompagnement des jeunes agriculteurs et de ceux souhaitant adopter des pratiques agricoles plus
respectueuses de l’environnement. La transmission des connaissances en agroécologie devient alors une pierre
angulaire de l’évolution des pratiques.
Un premier bâtiment a été livré. Il s’agite de la rénovation d’un ancien séchoir à Tabac aménagé en laboratoire de
transformation de la production agricole. Une conserverie et une salle de jus ont été aménagés afin de valoriser le sur-
plus de production agricole et lutter contre le gaspillage alimentaire. Le bâtiment a été financé par la société La Nomali
qui regroupe des maraichers des communes voisines. Le site est aussi un lieu de formation destiné aux agriculteurs mais
aussi aux écoles et au grand public afin d’intégrer le projet dans le territoire.
L’idée fondatrice du projet repose sur une réflexion liant architecture et agriculture. L’objectif est de concevoir
la rénovation à travers les ressources locales et les savoir-faire agricoles. Par exemple, l’oseraie plantée fournira la
matière première pour les brise-soleils. Construire pour et par la production l'agricole.
Porteur du projet
Charlotte ALLARD ✉️ 📞
Architecte
Charlotte Allard Architecture (EURL)
47 place de la cathédrale
33430 Bazas
Usagers / bénéficiaires / public
Nombre : 100
L'association de Carbouey et La nomali comptabilisent à ce jour 4 salariés. Le site accueille des professionnel lors de formations et à terme aura 8 étudiants en agro-écologie à plein temps sur place. et une centaine d'adhérants Le public regroupe à la fois les villageois lors des marchés nocturnes régulièrement organisés, les scolaire lors d'ateliers, et les agriculteurs lors de formations et lors de leur utilisation du laboratoire.
Équipe de conception
ᐅ Marina Galman / Association de Carbouey : directrice de l'association
ᐅ Marie Brunel / La nomali : Gérante
Budget global du projet
1 700 000€ HT
Financement
Mixte

Cour intérieure, point de convergence des programmes CAA

Élévation Ouest, passerelle en osier permet de rendre accessible les salles de conférences du R+1 et d'abriter la terrasse du restaurant. CAA

Transformation d'un séchoir en laboratoire de transformation CAA
Télécharger
Programme Sommet Agroécologique de BordeauxAssociation de Carbouey
Conférences et formations Association de Carbouey

Plan RDC CAA