Hurmalaga
Projet construit
Catégorie(s)
Identité locale - Culture/nature
Processus de projet évoquant l'adaptabilité d'un cadre bâti identitaire commun. Il explore les possibles évolutions d'une construction agricole Labourdine typique du XXème siècle au sein du Pays Basque Nord.
État d’avancement
Effectué ou livré
Année de réalisation
2025
Localisation
33 chemin Hurmalaga
64210 Arbonne 📍
Commanditaire
Privée
Descriptif du projet
Hurmalaga, c'est le devenir d'une construction agricole commune, la ferme basque labourdine du XXème siècle. Édifice autoconstruit par l'ancien propriétaire comprenant une partie agricole et une autre en espace habitable, son devenir est aujourd'hui modifié en un lieu d'habitation unifamiliale.
La commande est simple, investir les lieux afin de rendre cette ancienne construction vivable et fonctionnelle avec un budget restreint.
Autour, les champs, les reliefs et les cours d'eau bordent le terrain. Mais à l'intérieur, c'est tout autre, l'obscurité, l'humidité et l'exiguïté des espaces rendent l'ancienne construction hostile à la vie. L'ancien plan, comme refermé sur lui même ne permet pas de symbiose avec l'environnement, il y fait froid, sombre et les volumes sont scindés, marqueurs d'une époque où l'extérieur représentait un risque, une intrusion pour le bétail et le stockage alimentaire.
Aujourd'hui, l'activité agricole n'est plus présente, il faut pouvoir agir radicalement et de manière rationnelle.
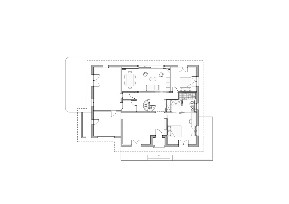
Le plan est alors basculé, les espaces de vies s'orientent vers le sud et une partie des chambres se positionnent au Nord.
Une seule ouverture est crée, une ouverture sur 4 mètres reprenant l'axe de deux fenêtres existantes afin de faire rentrer ce paysage à l'intérieur même de l'habitat.
Une ascension verticale s'immisce, c'est la greffe d'un nouvel escalier donnant l'accès aux usagers vers un autre lieu, les combles.
Au-dessus, une fenêtre de toit est placée offrant de la lumière à ces espaces sous les toits initialement obscurs.
Une salle d'eau est affectée, elle s'ouvre et se ventile par une fenêtre reprenant l'emplacement d'une ouverture déjà présente.
Voici les 4 éléments de transformations majeurs qui ont été apportés sur cette maison, la suite, c'est la vie qui prend forme.
Porteur du projet
louis arena ✉️ 📞
architecte
louis arena architecture
39 allée Pablo Picasso
64200 Biarritz
Usagers / bénéficiaires / public
Nombre :
Budget global du projet
80 000
Financement
Privé

L'escalier louis arena - louis arena architecture - Hurmalaga, Arbonne, 2025

Jardin intérieur louis arena - louis arena architecture - Hurmalaga, Arbonne, 2025

Passages louis arena - louis arena architecture - Hurmalaga, Arbonne, 2025

Plan projet louis arena architecture - Hurmalaga, Arbonne, 2025

Coupe projet louis arena architecture - Hurmalaga, Arbonne, 2025

Façades projet louis arena architecture - Hurmalaga, Arbonne, 2025