Regards, ruralités en Nouvelle-Aquitaine

Menu
Retour

La cabane Cranillère

Projet construit

Vue de la Cabane Cranillère et Extension depuis le sud / Edouard Decam -  Aldebert Verdier Architectes - Cabane Cranillère, Saint Astier, 2015

Vue de la Cabane Cranillère et Extension depuis le sud Edouard Decam - Aldebert Verdier Architectes - Cabane Cranillère, Saint Astier, 2015

Catégorie(s)

Ressources et savoir-faire - Pratiques

Le projet consiste en l'aménagement du siège social de Petrocore -, sur le site dit "la Cabane Cranillère" à Saint Astier (Dordogne). Cette Cabane existante ne suffisait plus aux besoins de l'exploitation truffière.
La plantation de chênes mycorhizés entrée en production et l' agro-foresteries, demandant de faire pacager des moutons dans les espaces truffiers, nécessitaient une présence humaine permanente pour l'exploitation agricole et donc le besoin d'une extension de la Cabane Cranillère.

État d’avancement

Effectué ou livré

Année de réalisation

2015

Localisation

Cabane Cranillère
24110 Saint Astier 📍

Commanditaire

Petrocore

Descriptif du projet

Le cadre paysager est très vaste et possède une identité déjà forte avec la petite cabane “ Cranillère ” en pierre dressée sur le
haut de la colline. Une des plus grande contrainte d’implantation de la maison tient justement du fait qu’il n’y en a
pas. Le parti pris est celui de « l’effacement », celui du dialogue avec l’existant et d’une architecture « invisible ».
La maison de plain-pied s’immisce sur le terrain sans s’imposer et tient compte de la perception aussi bien depuis le site
et des environs que de l’intérieur et de ce qui est donné à voir.
Elle trouve sa place dans la continuité de la cabane en pierre existante par un espace “ vide ” entre-deux qui reprend
en négatif du volume de l’existant. L’emprise rectangulaire au sol offre une généreuse terrasse et crée un gabarit, qui,
répété, structure la trame à partir de laquelle la nouvelle construction bois est conçue.
En lisière avec le petit bois au nord, le bardage vertical en pin de ton foncé veut se fondre dans le paysage et contraste
avec la pierre de l’existant. Les matériaux volontairement bruts et les grands cadrages cèdent la place au paysage.
A l’est et à l’ouest les volets coulissent, au sud ils se soulèvent par un système de vérins et protègent ainsi du soleil.
A l’intérieur, deux murs en béton banché (un au dos de la cheminée-insert et un séparant l’entrée du séjour)
partitionnement l’espace autant qu’ils offrent de l’inertie, restituant de la chaleur ou de la fraîcheur en fonction des
saisons. L’insert constitue le principe de chauffage principal de la maison.
Un encastrement de la maison dans le terrain crée un rapport particulier avec le sol. De plain-pied côté cuisine vers la
terrasse, la maison « s’enfonce » ensuite vers l’ouest : le terrain naturel est au niveau des bancs de la cheminée du séjour
puis dans le prolongement des bureaux dans les chambres, pour plus d’intimité et de recueillement.
A l’inverse, un escalier en colimaçon extérieur près de l’entrée permet un usage de la toiture.

Porteur du projet

Paul-Henry VERDIER ✉️ 📞

Architecte

Aldebert Verdier Architectes (SARL d'Architecture)
88 rue Lecocq
33000 BORDEAUX

Usagers / bénéficiaires / public

Nombre : 2

L'activité de production de truffes s'adresse à un public sensible aux produits issus d'un terroir, à la saisonnalité et aux traditions culinaires. Au delà de cette notion, il est essentiel de retenir que les besoins de cette activité de trufficulture ont été la source de préservation, de rénovation et d'extension d'un patrimoine bâti - La Cabane Cranillère - reconnu et identitaire du territoire de Saint Astier.

Équipe de conception

ᐅ Audrey Aldebert / Aldebert Verdier Architectes : Architecte - Maître d'oeuvre

ᐅ Paul-Henry Verdier / Aldebert Verdier Architectes : Architecte - Maître d'oeuvre

ᐅ Benjamin Roussel / Petrocore : Maître d'ouvrage

Budget global du projet

205 000,00€ HT

Financement

Privé

Financeurs

Petrocore

Vue de la Cabane Cranillère et Extension depuis le sud / Edouard Decam -  Aldebert Verdier Architectes - Cabane Cranillère, Saint Astier, 2015

Vue de la Cabane Cranillère et Extension depuis le sud Edouard Decam - Aldebert Verdier Architectes - Cabane Cranillère, Saint Astier, 2015

Vue de la Cabane Cranillère et Extension depuis le sud est / Edouard Decam -  Aldebert Verdier Architectes - Cabane Cranillère, Saint Astier, 2015

Vue de la Cabane Cranillère et Extension depuis le sud est Edouard Decam - Aldebert Verdier Architectes - Cabane Cranillère, Saint Astier, 2015

Vue de la façade ouest de l'Extension / Edouard Decam -  Aldebert Verdier Architectes - Cabane Cranillère, Saint Astier, 2015

Vue de la façade ouest de l'Extension Edouard Decam - Aldebert Verdier Architectes - Cabane Cranillère, Saint Astier, 2015

Vue intérieure vers l'ouest de l'Extension / Edouard Decam -  Aldebert Verdier Architectes - Cabane Cranillère, Saint Astier, 2015

Vue intérieure vers l'ouest de l'Extension Edouard Decam - Aldebert Verdier Architectes - Cabane Cranillère, Saint Astier, 2015

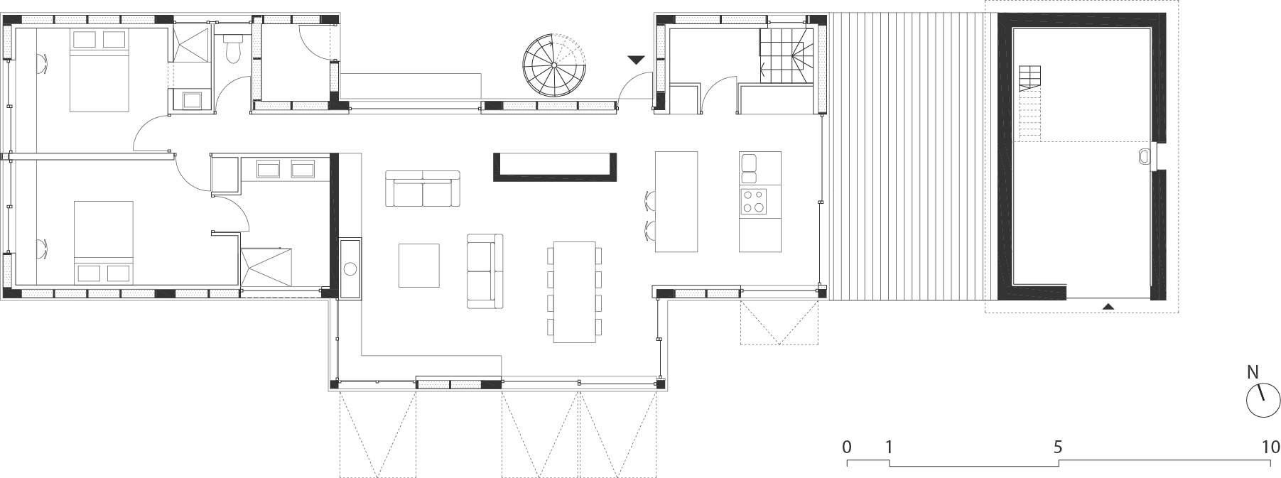
Plan RDC / Aldebert Verdier Architectes - Cabane Cranillère, Saint Astier, 2015

Plan RDC Aldebert Verdier Architectes - Cabane Cranillère, Saint Astier, 2015

Coupes / Aldebert Verdier Architectes - Cabane Cranillère, Saint Astier, 2015

Coupes Aldebert Verdier Architectes - Cabane Cranillère, Saint Astier, 2015

Vue aérienne de la Cabane Cranillère et de la plantation de chênes truffiers  / Source Google Earth Open Data - Cabane Cranillère, Saint Astier, 28/07/2025

Vue aérienne de la Cabane Cranillère et de la plantation de chênes truffiers Source Google Earth Open Data - Cabane Cranillère, Saint Astier, 28/07/2025

👀 Visuels 🖊️ Texte
©2025 Regards – Panorama des pratiques et ressources en matière de transformation spatiale. / Design graphique et développement : tabaramounien