La mairie pour tous
Projet construit
Catégorie(s)
Économie rurale - Communs
La commune de Callen, située au cœur de la forêt Landaise, est qualifiée par son nouveau Maire de village « airial ». Pendant le confinement, le village s’est retrouvé particulièrement isolé fragilisant socialement ses 150 habitants coupés du monde. Un contexte social qui a encouragé la nouvelle équipe municipale à restructurer sa mairie pour pouvoir accueillir en son sein un nouveau lieu d’échange appropriable par tous et qui encourage la multiplication d’initiatives citoyennes.
État d’avancement
Effectué ou livré
Année de réalisation
2025
Localisation
54 route de Préchac
40430 Callen 📍
Commanditaire
Mairie de Callen
Descriptif du projet
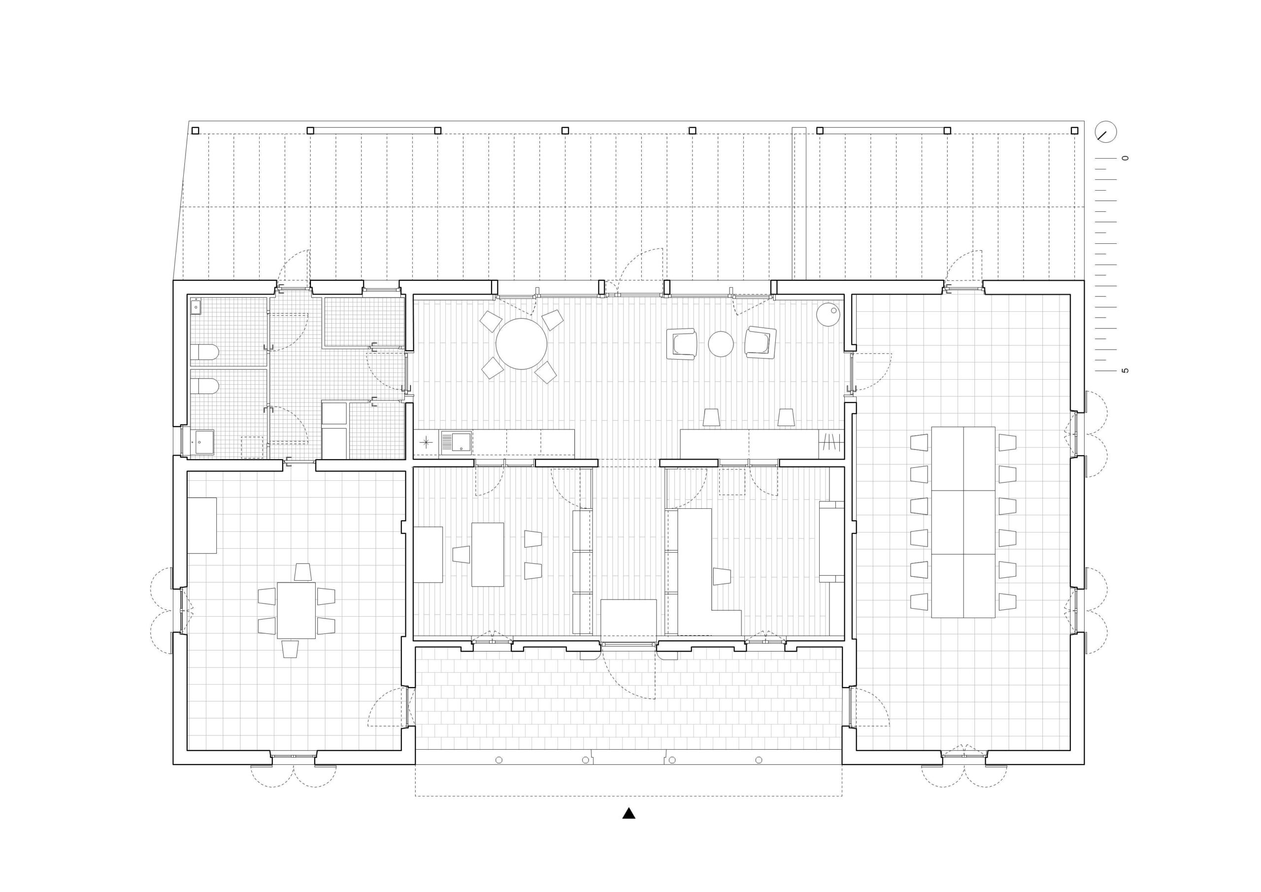
La nouvelle équipe municipale s’est emparée en urgence de la rénovation de sa mairie, vétuste et délabrée, dont certains espaces étaient laissés à l’abandon. L’approche architecturale se base sur une attention particulière au bâtiment existant. Son analyse et sa compréhension sont le point de départ de sa transformation afin de construire le plus simplement possible avec les espaces et les matériaux déjà présents. Il s’agit avant tout de simplifier le fonctionnement du bâtiment pour faciliter son appropriation par les usagers tout en apportant de la lumière, de la ventilation naturelle et des vues dégagées sur la beauté vivante du jardin à l’arrière, invisible pour le moment. Les espaces de repos du personnel municipal et les espaces d'accueil du public sont mutualisés sous la forme d'une pièce à vivre partagée avec vue sur le jardin de la mairie.
La transformation architecturale s’accompagne d’une réflexion environnementale en lien avec son territoire. Les
performances thermiques de l’enveloppe du bâtiment sont améliorées en choisissant des produits de construction avec une faible empreinte carbone : isolants naturels, bois, terre crue ou cuite. Des principes bioclimatiques simples sont mis en œuvre pour améliorer le confort thermique général. En hiver le bâtiment maximise la captation de l’énergie solaire grâce à des grandes ouvertures, puis la conserve par l’utilisation de matériaux à forte inertie sur les murs. À l’inverse, l’été et la mi-saison, le bâtiment se protège du rayonnement solaire par l’ajout d’une pergola et grâce aux arbres à feuilles caduques plantés pour faire de l’ombre au bâtiment.
Porteur du projet
Arthur Perbet ✉️ 📞
Architecte
Arthur Perbet Architecture
18 rue Brémontier
33800 Bordeaux
Usagers / bénéficiaires / public
Nombre : 5
Habitants de la commune, équipe municipale, associations
Équipe de conception
ᐅ Chavigny Claire / Arthur Perbet Architecture : Cheffe de projet
ᐅ Bouffin Yann / Mairie de Callen : Maire de Callen
ᐅ Dumont Nathalie / Mairie de Callen : Adjointe au maire
Budget global du projet
290 000 € ht
Financement
Public
Partenaires

Vue depuis la rue Agnès Clotis

Vue sous le préau Agnès Clotis

Vue de l'espace partagé Agnès Clotis

Plan avant / curage / projet Arthur Perbet architecture

Plan d'aménagement de la mairie Arthur Perbet architecture

Photomontage avant / après Arthur Perbet architecture