Regards, ruralités en Nouvelle-Aquitaine

Menu
Retour

La Maison du Paysage « Du paysage à l’assiette », Ostabat-Asme (64)

Projet construit

Vue générale  / Salem Mostefaoui - V2S Architectes - La Maison du Paysage, Ostabal-Asme, 2025

Vue générale Salem Mostefaoui - V2S Architectes - La Maison du Paysage, Ostabal-Asme, 2025

Catégorie(s)

Ressources et savoir-faire - Pratiques

La Maison du Paysage d’Ostabat-Asme illustre pleinement cette approche : bâtie sur un socle en pierres de réemploi et une structure en bois issu de la forêt communale, elle valorise les ressources locales et les savoir-faire du territoire. Chaque choix constructif traduit une attention au paysage et à ceux qui l’habitent, inscrivant le projet dans la continuité d’une mémoire vivante. Plus qu’un bâtiment, c’est un lieu ancré, durable et en harmonie avec son environnement rural.

État d’avancement

Effectué ou livré

Année de réalisation

2025

Localisation

Burguzahar
64120 Ostabat-Asme 📍

Commanditaire

Communauté d'Agglomération du Pays Basque

Descriptif du projet

La Maison du Paysage à Ostabat-Asme s’inscrit comme un équipement signal sur le chemin de Saint-Jacques-de-Compostelle. Portée par le projet transfrontalier JACOB@CCESS, elle offre un accès inclusif au patrimoine rural, agricole et gastronomique du Pays Basque. Pensée dès sa conception selon une accessibilité universelle, elle propose des cheminements adaptés, une signalétique claire, un mobilier ergonomique et des contenus multisensoriels pour garantir une expérience partagée par tous. Plus qu’un lieu d’accueil touristique, Ostavals valorise les ressources locales et anime la vie du village. En rez-de-chaussée, un restaurant ouvert sur le chemin complète l’équipement, en proposant une cuisine issue de produits agricoles locaux et d’un potager partagé. L’architecture épouse la topographie et dialogue avec le paysage : deux niveaux desservis indépendamment s’articulent autour d’un large passage couvert, inspiré de l’« eskatz » basque, véritable colonne vertébrale qui relie zones techniques, restaurant, sanitaires et centre d’interprétation ouvert sur le grand paysage. La conception privilégie lumière et confort climatique. Une grande baie vitrée capte les vues et les apports solaires passifs, un avant-toit en bois protège du soleil estival et crée un espace intermédiaire accueillant. La matérialité affirme un ancrage territorial fort : socle en pierres de réemploi, bois de pin laricio issu de la forêt communale et valorisé localement, isolation et panneaux acoustiques en fibres de bois. Cette cohérence constructive exprime sobriété et durabilité, à laquelle s’ajoutent des dispositifs énergétiques partagés avec des logements inclusifs voisins : chaufferie bois, puits canadien et toiture photovoltaïque. Ancrée dans son territoire tout en affirmant une écriture contemporaine, la Maison du Paysage incarne une architecture au service de l’inclusion, de la transmission et de la transition écologique reliant habitants, pèlerins et agriculteurs autour d’un patrimoine vivant.

Porteur du projet

Vincent CANDAU ✉️ 📞

Architecte

V2S Architectes
16 rue Albert 1er
64100 Bayonne

Usagers / bénéficiaires / public

Nombre :

La Maison du Paysage propose aux visiteurs – pèlerins, habitants, étudiants, touristes – des clés de lecture pour mieux comprendre les paysages agricoles de l’Oztibarre, de la Cize et d’Amikuze. Ce projet est à destination des touristes mais aussi des locaux : le restaurant met en lien le territoire, ceux qui le cultivent, et ceux qui le découvrent et ceux qui y vivent. Il s’adresse aussi bien aux visiteurs de passage qu’aux habitants, étudiants et professionnels du secteur.

Équipe de conception

ᐅ Vincent CANDAU / V2S Architectes : Architecte mandataire

ᐅ Charlotte LAPORTE / TSA : OPC

ᐅ Antoine PERSYN / IDEIA : BET VRD

ᐅ JM LURO / Mikela LURO : BET Structure

ᐅ Etudes ALDE / Alexandre BLOT : BET Structure bois

ᐅ CARTE ATLANTIQUE / Anouk FLORIN : BET Fluides

ᐅ SIMOTECH / Guillaume ANDRES : BET Electricité

ᐅ PIK Ingénierie / Freddy BISCARY : BET Environnement

ᐅ POLYMORPHE DESIGN / Maud DUPUIS : ACCESSIBILITE

Budget global du projet

1 500 000 €HT

Financement

Public

Vue générale  / Salem Mostefaoui - V2S Architectes - La Maison du Paysage, Ostabal-Asme, 2025

Vue générale Salem Mostefaoui - V2S Architectes - La Maison du Paysage, Ostabal-Asme, 2025

Vue du porche  / Salem Mostefaoui - V2S Architectes - La Maison du Paysage, Ostabal-Asme, 2025

Vue du porche Salem Mostefaoui - V2S Architectes - La Maison du Paysage, Ostabal-Asme, 2025

Espace exposition  / Salem Mostefaoui - V2S Architectes - La Maison du Paysage, Ostabal-Asme, 2025

Espace exposition Salem Mostefaoui - V2S Architectes - La Maison du Paysage, Ostabal-Asme, 2025

Restaurant  / Salem Mostefaoui - V2S Architectes - La Maison du Paysage, Ostabal-Asme, 2025

Restaurant Salem Mostefaoui - V2S Architectes - La Maison du Paysage, Ostabal-Asme, 2025

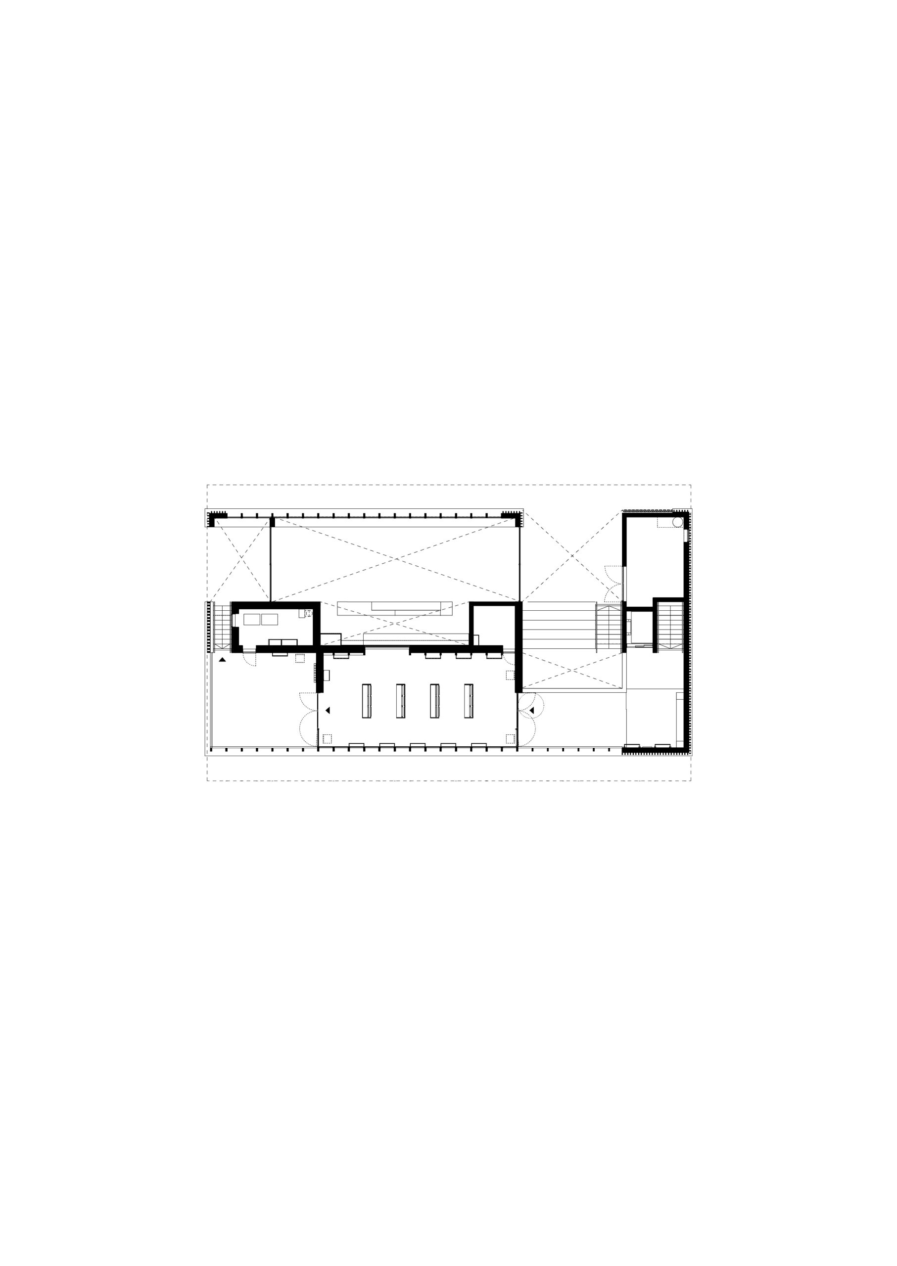
RDC  / V2S Architectes - La Maison du Paysage, Ostabal-Asme, 2025

RDC V2S Architectes - La Maison du Paysage, Ostabal-Asme, 2025

R+1 / V2S Architectes - La Maison du Paysage, Ostabal-Asme, 2025

R+1 V2S Architectes - La Maison du Paysage, Ostabal-Asme, 2025

Coupe  / V2S Architectes - La Maison du Paysage, Ostabal-Asme, 2025

Coupe V2S Architectes - La Maison du Paysage, Ostabal-Asme, 2025

👀 Visuels 🖊️ Texte
©2025 Regards – Panorama des pratiques et ressources en matière de transformation spatiale. / Design graphique et développement : tabaramounien