Le bâti comme vecteur d’identité: le château de Barrière de Villamblard
Projet construit
Catégorie(s)
Économie rurale - Communs
Selon nous, cet exemple illustre la capacité d'un édifice rural emblématique à être vecteur de lien social en recréant une dynamique de territoire, qu'elle soit professionnelle, culturelle, associative. Il fédère en incarnant mémoire et identité partagée.
État d’avancement
Effectué ou livré
Année de réalisation
2025
Localisation
1 avenue Edouard Dupuy
24140 Villamblard 📍
Commanditaire
Commune de Villamblard
Descriptif du projet
L’histoire du Château de Barrière peut à nouveau être partagée avec passion au château, par la municipalité, les associations et les habitants.
Inscrit à l'inventaire supplémentaire des Monuments Historiques en tant que ruine, cet édifice est devenu un catalyseur de la requalification du centre-bourg par sa propre réhabilitation en espace public. Il s’agit de la mise en valeur d’un patrimoine local ayant conduit à sa réappropriation.
En 1924, la commune rachète l'édifice, sauvant in extrémis un patrimoine en péril.
Dans les années 1990, le château semblait malgré tout condamné : tour nord effondrée, logis délabré, tour sud disparue, route traversant ses ruines.
Clé de lecture de l'histoire bâtie de Villamblard, il paraissait promis à la démolition.
Face à cette menace, une mobilisation locale s’organise.
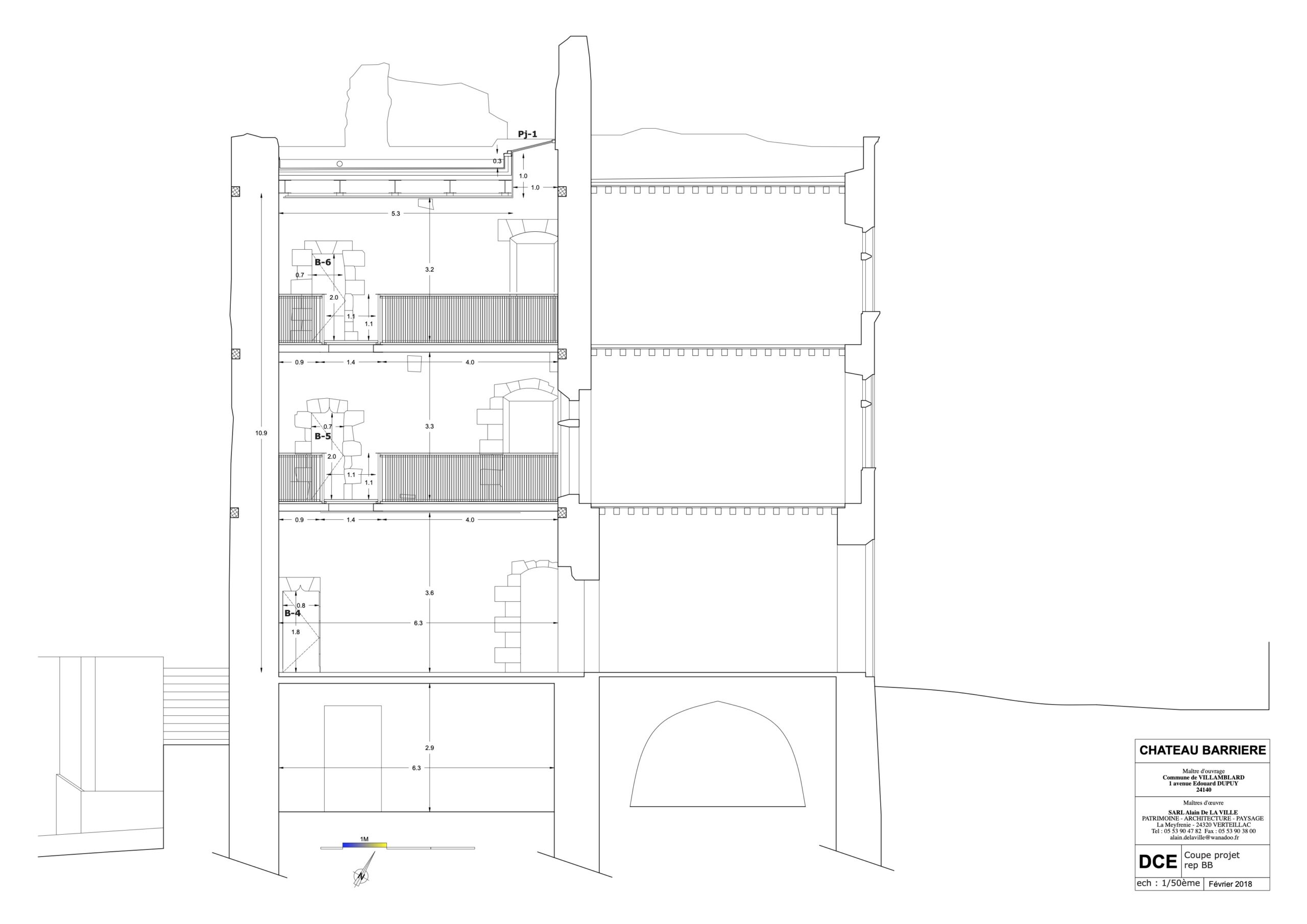
Trente ans plus tard, avec la troisième tranche de travaux - reconstitution de la tour nord, aménagement des abords, restitution du volume intérieur de la tour ronde - le château retrouve sa place dans le cœur du village.
Le projet architectural a cherché à redonner une cohérence d’ensemble au tissu bâti tout en préservant la mémoire collective.
Il s’est construit en différentes tranches de travaux :
2000 – cristallisation, restauration du corps central du logis
2014 – restauration, reconstruction du logis sud
2024 – restauration reconstruction en évocation de la tour ronde et aménagements d’accessibilité PMR à l’extérieur du château.
Les espaces, polyvalents, aujourd’hui spectacles, expositions, visites patrimoniales ou formations pour les Compagnons du devoir.
Entre restauration patrimoniale (plafonds à la française, cheminées monumentales) et interventions contemporaines (béton sablé, voile métallique), le château articule héritage et usages contemporains.
«Grâce au savoir-faire du cabinet ADLV et à leur passion pour le patrimoine, le château de Barrière retrouve son authenticité et sa beauté pour les générations à venir.»
Jean-Luc Alary maire de Villamblard
Porteur du projet
Julien Martineau ✉️ 📞
architecte
SAS ADLV
174 allée de la Meyfrenie
24320 Verteillac
Usagers / bénéficiaires / public
Nombre : 3000
scolaires, habitants, associations locales, professionnels dans le cadre de formations
Équipe de conception
ᐅ Emmanuel Goin / SOCOTEC : coordonnateur SPS
Budget global du projet
550 000 HT
Financement
Public

Evoquer la silhouette de la tour Le bâti, vecteur d'identité – château de Barrière à Villamblard

L'accessibilité au coeur de la poésie de la ruine-jardin Le bâti, vecteur d'identité – château de Barrière à Villamblard

Donner à lire un volume grâce à la lumière et aux circulations Le bâti, vecteur d'identité – château de Barrière à Villamblard
château de Barrière à Villamblard: visitez le Périgord secret!Déclic & Décolle - château de Barrière à Villamblard: visitez le Périgord secret!, Villamblard, juin 2025

Refermer la brèche au moyen d'une écriture et de matériaux comtemporains permettant de dater l'intervention SAS ADLV - Julien Martineau, Le bâti, vecteur d'identité – château de Barrière à Villamblard

circulations traitées en galerie d'expositions dans le volume sud avec une lumière zénithale particulièrement adaptée SAS ADLV - Julien Martineau, Le bâti, vecteur d'identité – château de Barrière à Villamblard