Pôle culturel et festif BOMA
Projet construit
Catégorie(s)
Engagement social - Initiatives collectives et individuelles
Avec la création du Pôle culturel et festif BOMA, la municipalité a voulu faire du domaine de Bômale un lieu de vie où les habitants se retrouvent, agissent ensemble, créent du commun… deviennent acteurs de leur territoire. Pensé comme un espace ouvert, partagé, le pôle encourage l’engagement citoyen à travers des activités culturelles, sociales et associatives. Ce tiers-lieu rural permet ainsi de « faire société » localement, en donnant à chacun les moyens et l’envie d’agir collectivement.
État d’avancement
Effectué ou livré
Année de réalisation
2021
Localisation
1, route de Guîtres
33910 SAINT-DENIS-DE-PILE 📍
Commanditaire
Mairie de Saint Denis de Pile
Descriptif du projet
À Saint-Denis-de-Pile, le domaine de Bômale situé à deux pas d’une église romane, s’étend jusqu’en bordure de l’Isle en une vaste prairie inondable. Ce site exceptionnel, marqué par sa chartreuse du XVIe siècle et son parc, vivait au rythme d’événements ponctuels – festival MusicaPile, cérémonies. Avec la création du Pôle culturel et festif BOMA, l’emprise foncière publique est intensifiée sans rompre l’équilibre urbain et redonne au site une vitalité quotidienne.
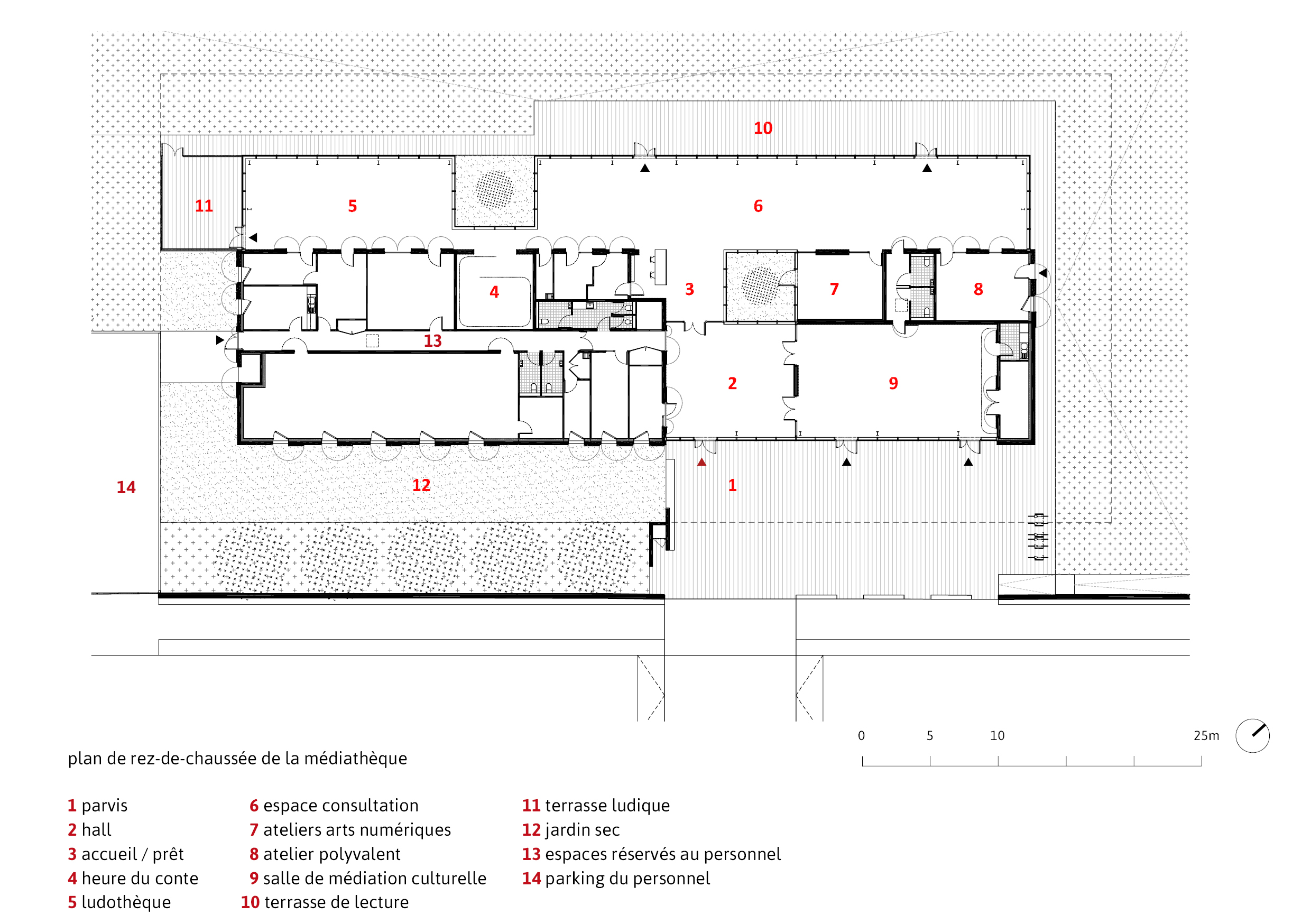
Un nouveau bâtiment s’installe en lisière du site, en marge volontaire, pour préserver la prairie comme scène ouverte à la vie collective. Derrière ses façades vitrées, le lieu conjugue usages et temporalités : médiathèque, ludothèque, salle de spectacle, espace numérique, centre social (CAF, aide juridique). On peut y venir pour une démarche administrative et repartir avec un livre, partager un café ou feuilleter la presse dans des assises confortables. Les enfants empruntent des jeux, inventent des mondes à la ludothèque ; les étudiants et télétravailleurs profitent du cadre bucolique et calme de la bibliothèque, propice à la concentration. Accessible depuis le hall, la salle de spectacle/exposition, complète l’offre culturelle.
Ce qui frappe, ce n’est pas seulement la diversité des fonctions, mais la manière dont elles cohabitent et se répondent. Sans portique ni barrière, les espaces favorisent l’appropriation spontanée : on entre, on circule, on s’installe.
Réhabilitée avec soin, la chartreuse du XVIe siècle s’inscrit dans cet espace public vibrant comme lieu de convivialité : Mariages, conseils municipaux, ateliers donnent corps à une vie publique active et partagée.
BOMA est devenu un troisième-lieu pour les 5 000 habitants de cette commune rurale: un terrain d’expression collective et de partage en prise directe avec le territoire. Généreux et évolutif, c’est un espace habité au fil des saisons, des projets, des envies. Un lieu vivant, ouvert, où la communauté se retrouve, agit, imagine – ensemble.
Porteur du projet
Marjan Hessamfar ✉️ 📞
Architecte DPLG cogérante
Agence d’architecture (Marjan Hessamfar et Joe Vérons architectes associés)
13 rue du Cancera
33000 BORDEAUX
Usagers / bénéficiaires / public
Nombre : 625
habitants de la commune et de l’intercommunalité
Équipe de conception
ᐅ Anne CHALET / Marjan Hessamfar et Joe Vérons architectes associés : Chef de projet
ᐅ Jamila DAHANE / EVP Ingénierie : bureau d’études structure
ᐅ Anna JEDROWSKI / EMACOUSTIC : bureau d’études acoustique
ᐅ Colombe COGORDAN / Enertek (ASCAUDIT) : bureau d’études fluides-HQE
ᐅ Elorri ETCHEGARAY / VOLGA (POLLEN PAYSAGE) : Paysagiste
ᐅ Jean-François VIALLARD / Via Infrastructure : bureau d’études VRD
ᐅ Natacha BAREYT / VPEAS : Economiste
Budget global du projet
4 045 340 € HT
Financement
Public

Les espaces largement ouverts et traversants, se prolongent sur l'extérieur grâce à la façade largement vitrée qui offre des vues sur le parc, la chartreuse et l'église romane totue proche Jean-François Tremege – Marjan Hessamfar et Joe Vérons architectes – Pôle culturel et festif BOMA, Saint-Denis-de-Pile, 2021

Les espaces intérieurs baignés de lumière naturelle, s'ouvrent généreusement sur le parc Jean-François Tremege – Marjan Hessamfar et Joe Vérons architectes – Pôle culturel et festif BOMA, Saint-Denis-de-Pile, 2021

implanté le long du mur d'enceinte ne pierre du domaine, le bâtiment neuf joue le rôle d'élément signal maquant l'entrée du parc Jean-François Tremege – Marjan Hessamfar et Joe Vérons architectes – Pôle culturel et festif BOMA, Saint-Denis-de-Pile, 2021

Plan masse Marjan Hessamfar et Joe Vérons architectes – Pôle culturel et festif BOMA, Saint-Denis-de-Pile, 2021

Façades Marjan Hessamfar et Joe Vérons architectes – Pôle culturel et festif BOMA, Saint-Denis-de-Pile, 2021

Plan de rez-de-chaussée du bâtiment médiathèque Marjan Hessamfar et Joe Vérons architectes – Pôle culturel et festif BOMA, Saint-Denis-de-Pile, 2021