Reconversion de la friche industrielle Teton
Projet construit
Catégorie(s)
Enjeux de société - Réponse politique
La reconversion de la friche Teton à Saint-Cyprien incarne la réinvention des espaces ruraux face aux pressions de la mondialisation et de la déprise économique. Elle requalifie un lieu délaissé mais important pour l’histoire locale en le transformant en un lieu utile pour la communauté. Elle questionne un enjeu majeur pour de nombreuses communes rurales : que faire du patrimoine industriel abandonné qui parsème l’espace rural ? Comment lui redonner vie tout en gardant la trace de son histoire ?
Identité locale - Culture/nature
La reconversion de la friche Teton à Saint-Cyprien incarne une réinterprétation créative du patrimoine industriel, tout en renforçant les liens entre mémoire collective, culture matérielle et ancrage territorial. Elle transforme un patrimoine industriel en un marqueur territorial contemporain — un lieu où mémoire, savoir-faire et innovation se rencontrent pour écrire une nouvelle page de l’histoire de Saint-Cyprien, ancrée dans son territoire et ouverte sur l’avenir.
État d’avancement
En cours de réalisation
Année de réalisation
2027
Localisation
23 rue Sainte Sabine
24220 Saint-Cyprien 📍
Commanditaire
Commune de Saint-Cyprien (24)
Descriptif du projet
La friche Teton, ancienne usine textile fermée en 2013 à Saint-Cyprien, symbole du déclin industriel, est aujourd’hui un projet emblématique de reconversion pour le bassin d’emploi local.
Rachetée par la commune, elle accueillera un pôle culturel et social : médiathèque, salle polyvalente, espaces sportifs et de musique, co-working et commerces. Destiné aux habitants de Saint-Cyprien et de la communauté de communes, ce projet s’intègre au réseau des bibliothèques territoriales, soutenu par la DRAC et la DBP et rayonnera à l’échelle du territoire.
Architecture et mémoire industrielle
Le site, composé de 4 volumes accolés reflétant l’évolution industrielle d’après-guerre, est repensé pour unifier les espaces et les intégrer au paysage urbain protégé se l’AVAP, tout en préservant leur histoire. Les façades, inspirées des mailles textiles, mêlent structure verticale évoquant la chaîne du métier à tisser et trames variables rappelant les motifs tissés. Ce jeu de plans crée des effets visuels changeants selon la distance, dialoguant avec l’architecture en pierre du centre-ville.
À l’intérieur, l’esprit industriel est conservé : les volumes existants sont valorisés, et un patio végétalisé, évoquant l’histoire du lieu, met en scène les sheds et les parois brutes, mêlés à une végétation sauvage de friche, en rapport avec le fonds spécifique « biodoversité » créé par la médiathèque.
le site est largement désimperméabilisé, favorisant l’infiltration naturelle des eaux de pluie. La proximité de la nappe phréatique est mise en valeur par un jardin de pluie sur le parvis, rappelant le cycle de l’eau et renforçant le lien entre le bâti et son environnement naturel.
En réinventant un lieu chargé d’histoire pour en faire un espace vivant, solidaire et écologique, la reconversion de la friche Teton incarne les défis contemporains des territoires ruraux : concilier mémoire industrielle, innovation sociale et transition écologique, au service d’une ruralité résiliente et ouverte.
Porteur du projet
Christian SIX ✉️ 📞
Maire
Mairie De Saint-Cyprien
4 place Jean Ladignac
24220 Saint-Cyprien
Usagers / bénéficiaires / public
Nombre : 498
Habitants de la Communauté de Commune Vallée de la Dordogne et Forêt Bessède Jeunesse & Adolescents Scolaires, tous niveaux Actifs Personnes âgées. (RA, Ehpad, résidents) Touristes
Équipe de conception
ᐅ Stéphane GODET / ATELIER GODET RABECQ : Architecte mandataire
ᐅ Fabien MONSONCLES / GROUPE CETAB : BET structure, fluides, thermique, VRD
ᐅ Olivier GYSBERS / SOCAMA INGENIERIE : Paysagiste
ᐅ Ludovic BISSERIER / MEB SARL : Economiste / OPC
Budget global du projet
3500000
Financement
Public
Financeurs
➝ DETR

Le projet désimperméabilise et renature le site ATELIER GODET RABECQ - Reconversion de la Friche Teton, Saint-Cyprien

La médiathèque conserve ambiance industrielle du lieu ATELIER GODET RABECQ - Reconversion de la Friche Teton, Saint-Cyprien

Le traitement de façade évoque l'histoire du lieu ATELIER GODET RABECQ - Reconversion de la Friche Teton, Saint-Cyprien

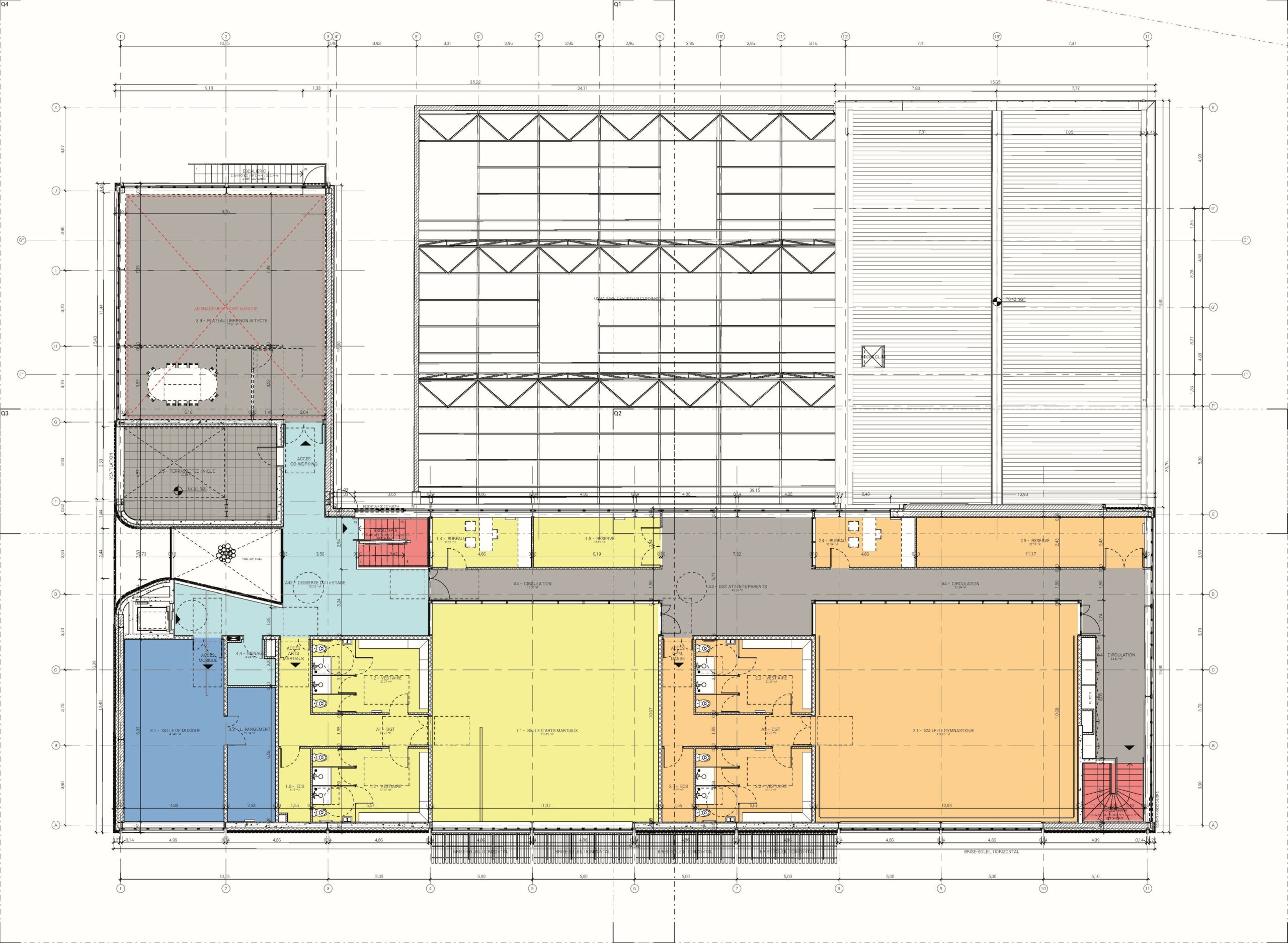
PLAN RDC ATELIER GODET RABECQ - Reconversion de la Friche Teton, Saint-Cyprien

PLAN R+1 ATELIER GODET RABECQ - Reconversion de la Friche Teton, Saint-Cyprien

Principe de façade ATELIER GODET RABECQ - Reconversion de la Friche Teton, Saint-Cyprien