ECOLE PAUL BERT
Projet construit
Catégorie(s)
Économie rurale - Communs
Le projet consiste en l'agrandissement de l'école PAUL BERT à Sainte Foy La Grande. Sainte Foy La Grande est une "petite" ville située en ruralité sur la frontière entre la gironde et la drodogne.
Situé sur la place du foirail en lisière de la bastide du XIIème siècle, ce projet est est destiné à une population majoritairement précaire dont la majorité des enfants sont issu de parents en situation de travaux ruraux (vigne/maraichage).
État d’avancement
Effectué ou livré
Année de réalisation
2024
Localisation
PLACE DU FOIRAIL
33220 SAINTE FOY LA GRANDE 📍
Commanditaire
PAUL BERT
Descriptif du projet
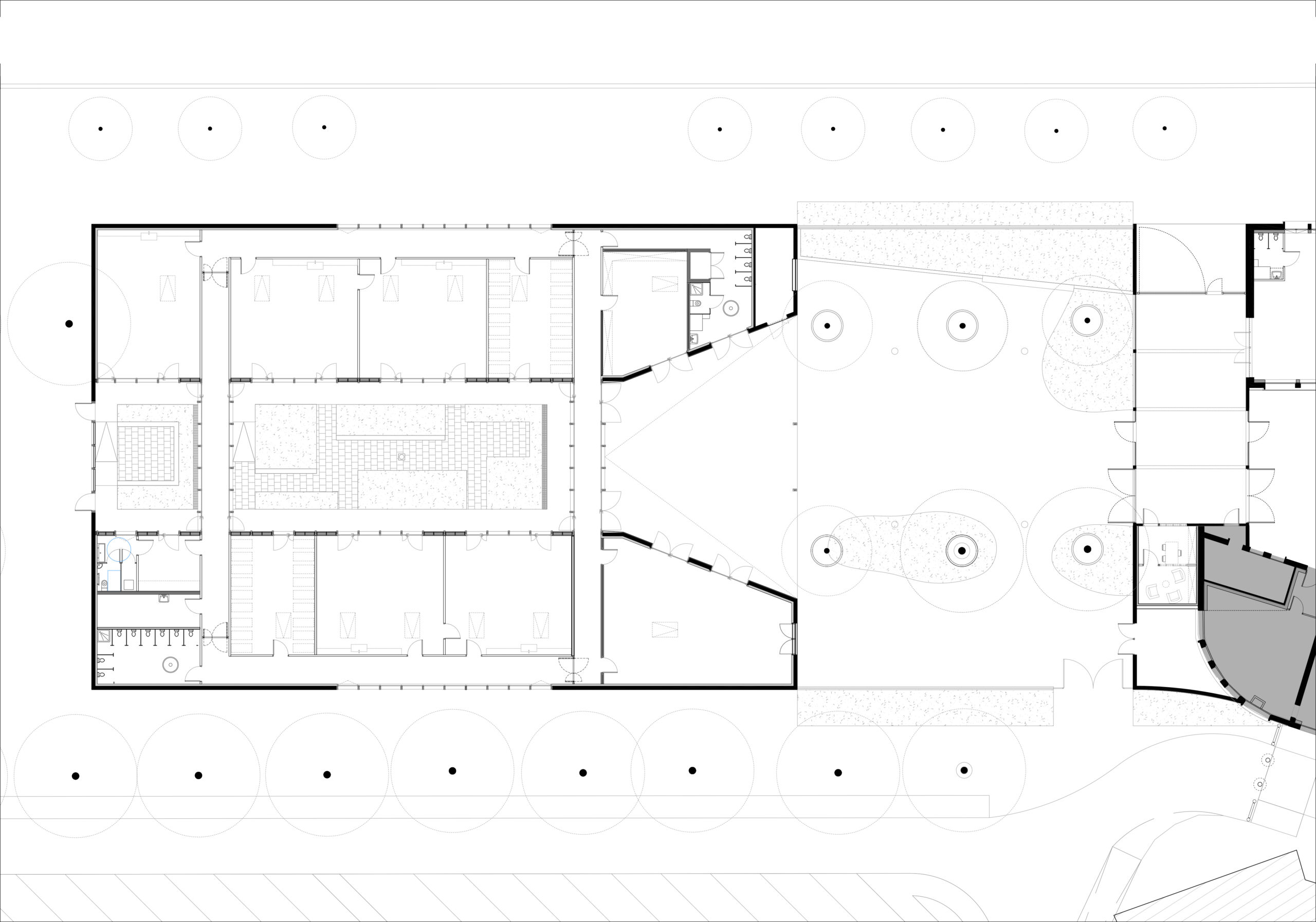
Sainte-Foy-la-Grande, bastide du XIIIᵉ siècle, se resserre sur elle-même tandis qu’en vis-à-vis, la place du Foirail s’ouvre largement sous les platanes centenaires. Entre ces deux visages s’implante l’école Paul Bert, étendue au fil du temps jusqu’à occuper un îlot complet. Le projet vise à agrandir la maternelle et à créer une entrée commune, claire et accueillante, reliant l’école à la ville et à son paysage.
La nouvelle maternelle s’installe le long du boulevard Garrau, au cœur de la trame végétale, respectant les alignements d’arbres et la structure urbaine. Elle s’ouvre sur un square et un patio, cœur vert et apaisé, véritable régulateur thermique et lieu d’éveil. Ce dispositif bioclimatique — ventilation naturelle, protection solaire, inertie du bois — garantit un confort durable, sobre en énergie et sensible aux saisons.
Un porche en bois et zinc, abrité sous une toiture concave, relie les bâtiments anciens et contemporains. Cette ligne douce dialogue avec les toitures voisines et évoque la toile d’un chapiteau, clin d’œil aux foires du Foirail. Le geste est simple et unifiant : il relie, abrite et raconte la continuité du lieu.
La construction, en filière sèche et matériaux locaux — bois, chaux, paille, liège, peintures végétales — privilégie une mise en œuvre rapide, propre et peu carbonée. À l’intérieur, la lumière et la matière suffisent ; la sobriété devient cadre d’appropriation.
Deux œuvres de Mathias Lotty, comme des vitraux contemporains, filtrent les regards et colorent la lumière, transformant les circulations en paysages sensibles.
L’école ne cherche pas à s’imposer mais à révéler ce qui existe déjà : les continuités urbaines, la lumière, la matière. Sobriété, émotion et justesse guident le projet, au service de l’éveil et de la poésie du quotidien.
Porteur du projet
Mairie de Sainte Foy La Grande ✉️ 📞
Mairie
Ville (Mairie de sainte foy la grande)
1 Place Gambetta
33220 Sainte Foy La Grande
Usagers / bénéficiaires / public
Nombre : 70
Création de l'extension de l'école Paul Bert. L'extension consiste en la création d'un bâtiment pour la mise en place d'une unité indépendante de 5 classes maternelles, 2 dortoirs, salles de motricités, cour et patio. La catégorie socio-professionnelle est précarisée. L'établissement est classé en REP.
Équipe de conception
ᐅ Maxime Eveillard / ILAO : BET TCE
ᐅ Vincent Hedon / CCVH : Acousticien
ᐅ Giovanna Marinoni / INDIGO : paysagiste
Budget global du projet
2 200 000 € HT
Financement
Public
Financeurs
➝ ETAT

Patio Agnes Clotis - ATELIER MAB - Ecole Paul Bert, Sainte Foy La Grande, 2024

Cour et Préau Agnes Clotis - ATELIER MAB - Ecole Paul Bert, Sainte Foy La Grande, 2024

Façade du Foirail Agnes Clotis - ATELIER MAB - Ecole Paul Bert, Sainte Foy La Grande, 2024
Télécharger
Livret de présentationATELIER MAB - Benjamin Bocquet - Ecole Paul Bert Sainte Foy La Grande

Plan projet ATELIER MAB - Benjamin Bocquet - Ecole Paul Bert Sainte Foy La Grande
Télécharger
CoupesATELIER MAB - Benjamin Bocquet - Ecole Paul Bert Sainte Foy La Grande