Regards, ruralités en Nouvelle-Aquitaine

Menu
Retour

Maison du Parc Régional Médoc

Vue extérieure / Perspectiviste Rosario Badesa - Lanoire Courrian architectes - Maison du PNR, Saint Laurent Médoc, livraison 2026

Vue extérieure Perspectiviste Rosario Badesa - Lanoire Courrian architectes - Maison du PNR, Saint Laurent Médoc, livraison 2026

Catégorie(s)

Identité locale - Culture/nature

Le projet de Maison du Parc naturel régional Médoc à Saint-Laurent-du-Médoc vise à réhabiliter et étendre une longère et un chai pour créer un lieu d’accueil du public et de travail pour l’équipe du Parc. Véritable vitrine du territoire, elle valorisera l’identité locale, la relation culture-nature et les savoir-faire du Médoc à travers expositions, ateliers et rencontres, devenant un espace vivant de médiation et de rayonnement du Parc.

État d’avancement

En cours de réalisation

Année de réalisation

2026

Localisation

17 bis, rue de Lorthe
33112 Saint-Laurent-Médoc 📍

Commanditaire

Syndicat mixte de gestion et d'aménagement du Parc Régional du Médoc

Descriptif du projet

La Maison du Parc naturel régional du Médoc incarne les valeurs fondatrices du Parc : préserver, révéler et transmettre les richesses naturelles, culturelles et paysagères du territoire. Implanté dans une ancienne ferme médocaine à Saint-Laurent-Médoc, le projet consiste en la réhabilitation et l’extension d’une longère et de son chai, accueillant désormais un espace public (accueil, boutique, expositions, ateliers créatifs) et les locaux administratifs du Parc (bureaux, salles de réunion, convivialité, espaces techniques).
L’ensemble du projet s’attache à valoriser le patrimoine bâti et paysager : la longère et le chai sont conservés, reliés et mis en valeur, tandis que les ajouts contemporains prolongent le vocabulaire rural sans le dénaturer. Cette approche, centrée sur la sobriété constructive et la transformation de l’existant, permet de limiter l’empreinte carbone tout en révélant l’identité architecturale du lieu.
La réhabilitation bioclimatique repose sur l’emploi de matériaux biosourcés – bois, chanvre, béton de chanvre projeté ou préfabriqué – assurant confort thermique, durabilité et cohérence avec les filières locales. Les façades en panneaux Viroc (bois-ciment) soulignent une écriture architecturale sobre et contemporaine.
Le projet intègre une démarche environnementale complète :
• Protection de la biodiversité, en partenariat avec le bureau ELIOMYS : création de gîtes pour chauves-souris, refuges pour lézards et hibernaculums pour couleuvres.
• Lutte contre la pollution lumineuse, avec un éclairage maîtrisé et orienté.
• Gestion écologique des extérieurs : sols perméables, parvis en terre-pierre, cheminements accessibles, haies bocagères et végétation locale.
Symbole d’un ancrage territorial fort, la Maison du Parc devient un lieu de rencontre, de transmission et d’identité collective, reliant patrimoine, écologie et modernité au cœur du Médoc.

Porteur du projet

Henri Sabarot ✉️ 📞

Président

PNR Médoc (Parc Naturel Régional Médoc)
21 rue du Général de Gaulle
33112 Saint-Laurent-Médoc

Usagers / bénéficiaires / public

Nombre : 150

Equipe + stagiaires + service civique Scolaires Visiteurs locaux Excursionnistes, touristes Partenaires

Équipe de conception

ᐅ Jean-Philippe Lanoire et Sophie Courrian / LANOIRE ET COURRIAN : Architecte

ᐅ Benoit Melot / ODETEC : Bureau d'études TCE

ᐅ Alexandre Covinhes / SIGMA : Bureau d'études Acoustique

ᐅ Jean-Hugues Manoury / SCENEVOLUTION : Scénographe

ᐅ Sébastien Riquois / QUAND LES ARBRES AURONT DES FEUILLES : Paysagiste

ᐅ Olivier Touzot / ELIOMYS : Ecologue

Budget global du projet

3 270 000 € HT

Financement

Mixte

Vue extérieure / Perspectiviste Rosario Badesa - Lanoire Courrian architectes - Maison du PNR, Saint Laurent Médoc, livraison 2026

Vue extérieure Perspectiviste Rosario Badesa - Lanoire Courrian architectes - Maison du PNR, Saint Laurent Médoc, livraison 2026

Vue intérieure / Perspectiviste Rosario Badesa - Lanoire Courrian architectes - Maison du PNR, Saint Laurent Médoc, livraison 2026

Vue intérieure Perspectiviste Rosario Badesa - Lanoire Courrian architectes - Maison du PNR, Saint Laurent Médoc, livraison 2026

Axonométrie de principe / Lanoire Courrian architectes - Maison du PNR, Saint Laurent Médoc, livraison 2026

Axonométrie de principe Lanoire Courrian architectes - Maison du PNR, Saint Laurent Médoc, livraison 2026

Photo du chantier / Lanoire Courrian architectes - Maison du PNR, Saint Laurent Médoc, livraison 2026

Photo du chantier Lanoire Courrian architectes - Maison du PNR, Saint Laurent Médoc, livraison 2026

Plan de masse / Lanoire Courrian architectes - Maison du PNR, Saint Laurent Médoc, livraison 2026

Plan de masse Lanoire Courrian architectes - Maison du PNR, Saint Laurent Médoc, livraison 2026

Plan RDC / Lanoire Courrian architectes - Maison du PNR, Saint Laurent Médoc, livraison 2026

Plan RDC Lanoire Courrian architectes - Maison du PNR, Saint Laurent Médoc, livraison 2026

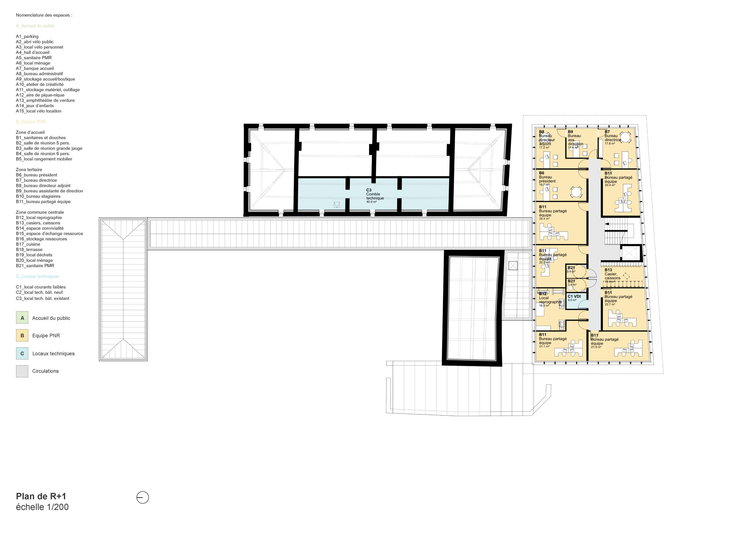
Plan R+1 / Lanoire Courrian architectes - Maison du PNR, Saint Laurent Médoc, livraison 2026

Plan R+1 Lanoire Courrian architectes - Maison du PNR, Saint Laurent Médoc, livraison 2026

👀 Visuels 🖊️ Texte
©2026 Regards – Panorama des pratiques et ressources en matière de transformation spatiale. / Design graphique et développement : tabaramounien